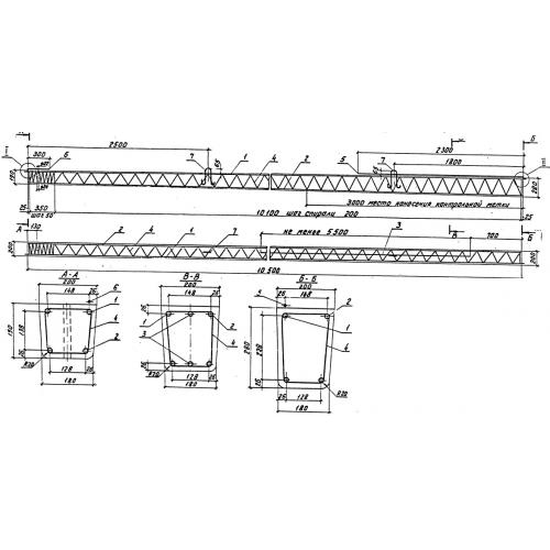
СВ 105 стойка

Чертеж изделия:
Характеристики изделия:
ПараметрЗначение
длина10500 мм
ширина200 мм
высота280 мм
масса1175 кг
нормативный документГОСТ 23613-79

СВ 105  Стойки вибрированные для опор ЛЭП  ГОСТ 23613-79.