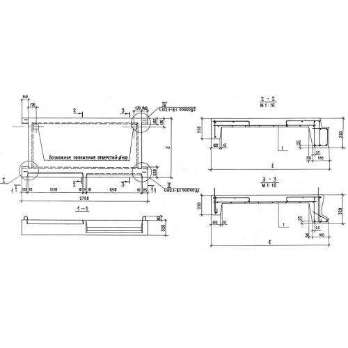
2ЛП 25.13 лестничные площадки ребристые
Характеристики изделия:
| Параметр | Значение |
|---|---|
| длина | 2500 мм |
| ширина | 1300 мм |
| высота | 320 мм |
| масса | 1100 кг |
| нормативный документ | ГОСТ 9818-85 |
Цена:
Рассчитать стоимость2ЛП 25.13 Лестничные площадки ребристые ГОСТ 9818-85.
