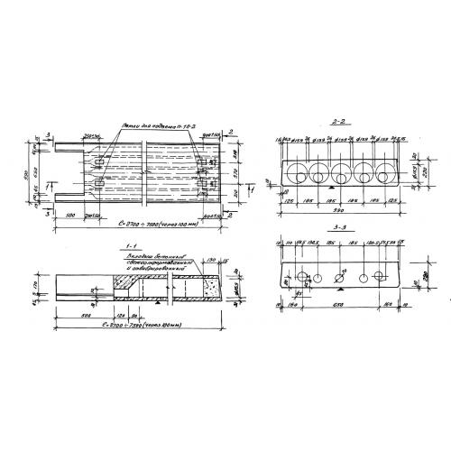
КНК 32.10
Характеристики изделия:
| Параметр | Значение |
|---|---|
| длина | 3200 мм |
| ширина | 990 мм |
| высота | 220 мм |
| вес | 935 кг |
| серия | 1.141.1 КР-3 |
Цена:
Рассчитать стоимостьКНК 32.10 Панели с круглыми пустотами с консольными выпускными ребрами по серии 1.141.1 КР-3.
| Параметр | Значение |
|---|---|
| длина | 3200 мм |
| ширина | 990 мм |
| высота | 220 мм |
| вес | 935 кг |
| серия | 1.141.1 КР-3 |
КНК 32.10 Панели с круглыми пустотами с консольными выпускными ребрами по серии 1.141.1 КР-3.
