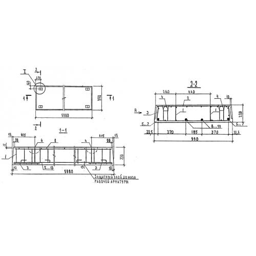
П 60.10
Характеристики изделия:
| Параметр | Значение |
|---|---|
| длина | 5980 мм |
| ширина | 990 мм |
| высота | 220 мм |
| вес | 3200 кг |
| серия | 1.243.1-5 |
Цена:
Рассчитать стоимостьП 60.10 Панели перекрытий беспустотные по серии 1.243.1-5.
| Параметр | Значение |
|---|---|
| длина | 5980 мм |
| ширина | 990 мм |
| высота | 220 мм |
| вес | 3200 кг |
| серия | 1.243.1-5 |
П 60.10 Панели перекрытий беспустотные по серии 1.243.1-5.
