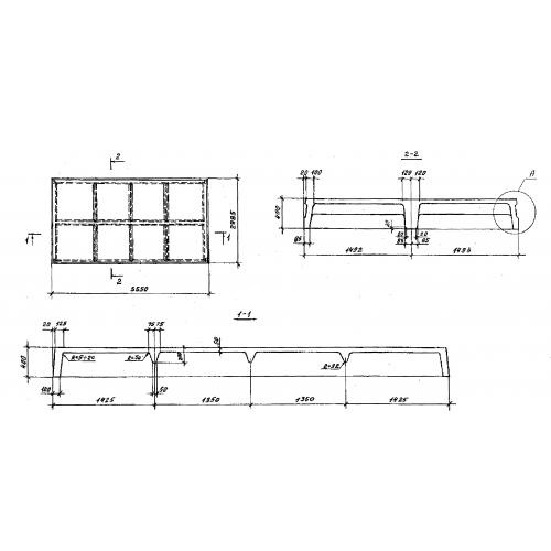
1П 1 Плиты ребристые из бетона на пористых заполнителях

Чертеж изделия:
Характеристики изделия:
ПараметрЗначение
длина5550 мм
ширина2985 мм
высота400 мм
масса4730 кг
нормативный документСерия 1.442.1-1.87

1П 1 Плиты перекрытия и покрытия ребристые из бетона на пористых заполнителях Серия 1.442.1-1.87.