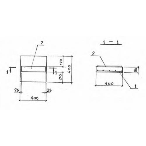
ОП 3 опорные подушки
Характеристики изделия:
| Параметр | Значение |
|---|---|
| длина | 400 мм |
| ширина | 400 мм |
| высота | 90 мм |
| масса | 40 кг |
| нормативный документ | Серия 3.006.1-2/87 |
Цена:
Рассчитать стоимостьОП 3 Опорные подушки Серия 3.006.1-2/87.
| Параметр | Значение |
|---|---|
| длина | 400 мм |
| ширина | 400 мм |
| высота | 90 мм |
| масса | 40 кг |
| нормативный документ | Серия 3.006.1-2/87 |
ОП 3 Опорные подушки Серия 3.006.1-2/87.
