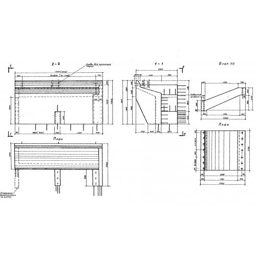
Ш 1

Чертеж изделия:
Характеристики изделия:
ПараметрЗначение
длина4700 мм
ширина2200 мм
высота2300 мм
вес13300 кг
серия3.501-61

Ш 1 Шкафные блоки по серии 3.501-61.