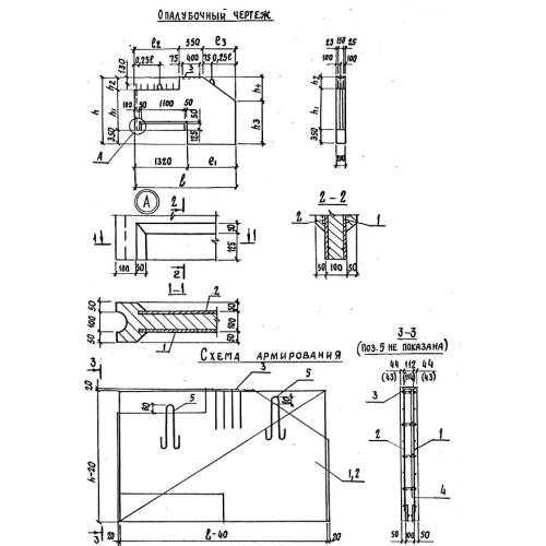
БК 37

Чертеж изделия:
Характеристики изделия:
ПараметрЗначение
длина3650 мм
ширина200 мм
высота2250 мм
вес3400 кг
серия3.503.1-100

БК 37  Блоки крайние шкафной стенки по серии 3.503.1-100.