П 15
Характеристики изделия:
| Параметр | Значение |
|---|---|
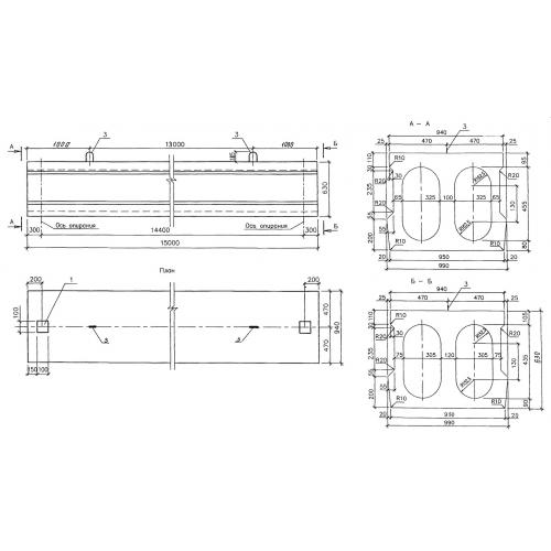
| длина | 15000 мм |
| ширина | 990 мм |
| высота | 630 мм |
| вес | 12900 кг |
| серия | 3.503.1-108 |
Цена:
Рассчитать стоимостьП 15 Пустотные плиты по серии 3.503.1-108.
| Параметр | Значение |
|---|---|
| длина | 15000 мм |
| ширина | 990 мм |
| высота | 630 мм |
| вес | 12900 кг |
| серия | 3.503.1-108 |
П 15 Пустотные плиты по серии 3.503.1-108.
