Ф 330-74

Чертеж изделия:
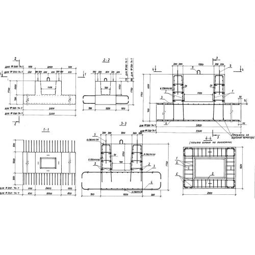
Характеристики изделия:
ПараметрЗначение
длина3400 мм
ширина3300 мм
высота1750 мм
вес15400 кг
нормативный документСерия 3.503.1-90

Ф 330-74 Симметричные блоки фундамента по Серии 3.503.1-90.