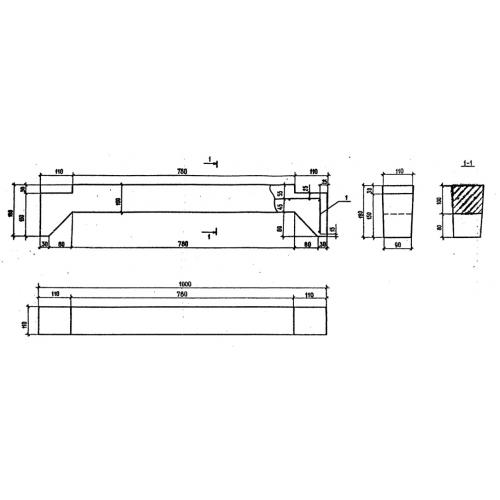
РК-1 Элементы железобетонных решетчатых конструкций

Чертеж изделия:
Характеристики изделия:
ПараметрЗначение
длина1000 мм
ширина180 мм
высота100 мм
вес26 кг
нормативный документСерия 3.503.9-78

РК-1  Элементы железобетонных решетчатых конструкций по  Серии 3.503.9-78.