ДР-8

Чертеж изделия:
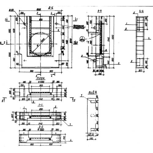
Характеристики изделия:
ПараметрЗначение
длина1800 мм
ширина350 мм
высота2200 мм
масса2275 кг
нормативный документСерия 3.820-6

ДР-8 Диафрагмы для регуляторов с закладной рамой по Серии 3.820-6.