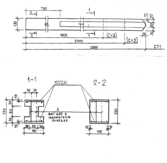
СТ-1
Характеристики изделия:
| Параметр | Значение |
|---|---|
| Длина L | 2800 мм |
| Ширина В | 110 мм |
| Высота Н | 130 мм |
| Вес | 83 кг |
| Серия | Б3.017.1-1 |
| Норма погрузки на машину (20тн) | 240 шт |
| Вагонная норма погрузки | - |
Цена:
Рассчитать стоимостьСтолбы забора СТ 1 применяются совместно с панелями ограждения, изготовленными по серии Б 3.017.1-1.
