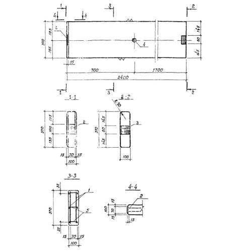
МЖ 3-3
Характеристики изделия:
| Параметр | Значение |
|---|---|
| длина | 2400 мм |
| ширина | 100 мм |
| высота | 370 мм |
| вес | 212 кг |
| серия | ТП 310-4-1 |
Цена:
Рассчитать стоимостьМЖ 3-3 Малые железобетонные архитектурные формы по проекту ТП 310-4-1.
| Параметр | Значение |
|---|---|
| длина | 2400 мм |
| ширина | 100 мм |
| высота | 370 мм |
| вес | 212 кг |
| серия | ТП 310-4-1 |
МЖ 3-3 Малые железобетонные архитектурные формы по проекту ТП 310-4-1.
