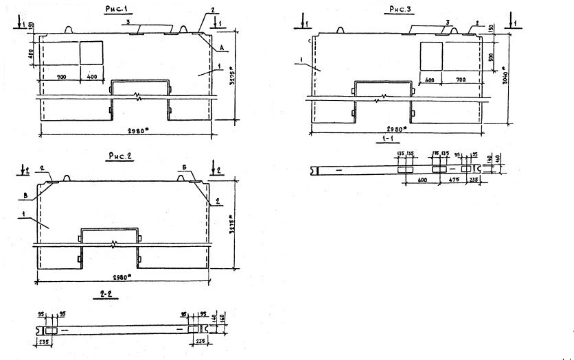
ПВ 30.30

Чертеж изделия:
Характеристики изделия:
ПараметрЗначение
длина2980 мм
ширина3040 мм
высота160 мм
вес3480 кг
серияТП 503-7-13.88

ПВ 30.30 Панели стеновые по проекту ТП 503-7-13.88.